Skip To Content

2 Little Cove Ln

Orleans, MA 02653
  • $1,995,000
  • STATUS: Active
  • MLS #: 73393730
UPDATED: 7 min ago
$1,995,000
  • 4
    BEDS
  • 1.05
    ACRES
  • 3
    BATHS
  • 1
    1/2 BATHS
  • 3,000
    SQFT
  • $665
    $/SQFT
Type:
Single-Family Home
Built:
1924
County:

School Ratings & Info

Listing courtesy of Susan Sullivan of Realty Consultants of Cape Cod.

Description

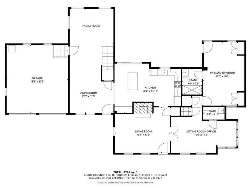
Welcome to your private Cape Cod retreat just 1.8 miles from Nauset Beach! This beautifully remodeled home offers a perfect blend of luxury and style with a thoughtful, versatile floor plan. The stunning kitchen features high-end appliances, a large island, and abundant natural lightmaking it the heart of the home. With four spacious bedrooms, including two luxurious primary suites with en suite baths, plus three full baths and a half bath, there's room for everyone. Outside, enjoy your own backyard oasis complete with a brand-new 36x18 heated pool, patio, outdoor shower, lush lawn, and vibrant gardens. A 300 sq. ft. barn with new windows and a potter's shed add charm and endless possibilities.

Monthly Payment Calculator



The property listing data and information set forth herein were provided to MLS Property Information Network, Inc. from third party sources, including sellers, lessors and public records, and were compiled by MLS Property Information Network, Inc. The property listing data and information are for the personal, non commercial use of consumers having a good faith interest in purchasing or leasing listed properties of the type displayed to them and may not be used for any purpose other than to identify prospective properties which such consumers may have a good faith interest in purchasing or leasing. MLS Property Information Network, Inc. and its subscribers disclaim any and all representations and warranties as to the accuracy of the property listing data and information set forth herein. Data last updated 2025-11-09T15:03:46.92.
www.northcorners.com/homes/165074426
Print Image

2 Little Cove Ln Orleans, MA 02653

  • Price: $1,995,000
  • Status: Active
  • On Site: Days
  • Updated: 7 min ago
  • MLS #: 73393730
4
Beds
3
Baths
1
½ Baths
1.05
Acres
3,000
SQFT
$665
$/SQFT
1924
Built
County:
Barnstable
Property Description
Welcome to your private Cape Cod retreat just 1.8 miles from Nauset Beach! This beautifully remodeled home offers a perfect blend of luxury and style with a thoughtful, versatile floor plan. The stunning kitchen features high-end appliances, a large island, and abundant natural lightmaking it the heart of the home. With four spacious bedrooms, including two luxurious primary suites with en suite baths, plus three full baths and a half bath, there's room for everyone. Outside, enjoy your own backyard oasis complete with a brand-new 36x18 heated pool, patio, outdoor shower, lush lawn, and vibrant gardens. A 300 sq. ft. barn with new windows and a potter's shed add charm and endless possibilities.
Exterior Features

Architectural Style Cape Attached Garage YN Yes Carport YN No Covered Spaces 2 Garage YN Yes Lot Features Corner LotWoodedCleared Open Parking YN Yes Parking Features AttachedPaved Drive Parking Total 6 Property Attached YN No Spa YN No Waterfront Features Ocean1/2 to 1 Mile To BeachBeach Ownership(Public) Waterfront YN No

Interior Features

Basement Full Building Area Total 3000 Cooling Central Air Cooling YN Yes Fireplace YN Yes Fireplaces Total 1 Foundation Details Concrete Perimeter Heating BaseboardOilNatural Gas Heating YN Yes Lead Paint None Rooms Total 8

Property Features

Association YN No Disclosures Full house renovation in 2024/2025. Owner of the property is Big Cove LLC Home Warranty YN No Property Sub Type Single Family Residence Senior Community YN No Sewer Private Sewer Tax Annual Amount 6755 Tax Year 2025 Water Source Public Year Built Details Actual Year Round Yes Zoning R

Listing information © 2025 MLS Property Information Network. All information is deemed reliable but should be independently verified.
Listing provided courtesy of Susan Sullivan of Realty Consultants of Cape Cod: 774-237-0848.


The property listing data and information set forth herein were provided to MLS Property Information Network, Inc. from third party sources, including sellers, lessors and public records, and were compiled by MLS Property Information Network, Inc. The property listing data and information are for the personal, non commercial use of consumers having a good faith interest in purchasing or leasing listed properties of the type displayed to them and may not be used for any purpose other than to identify prospective properties which such consumers may have a good faith interest in purchasing or leasing. MLS Property Information Network, Inc. and its subscribers disclaim any and all representations and warranties as to the accuracy of the property listing data and information set forth herein. Data last updated 2025-11-09T15:03:46.92.
 
https://bt-photos.global.ssl.fastly.net/mlspin/orig_boomver_5_73393730_2.jpg https://bt-photos.global.ssl.fastly.net/mlspin/orig_boomver_5_73393730_2.jpg https://bt-photos.global.ssl.fastly.net/mlspin/orig_boomver_5_73393730_2.jpg
Logo
North Corners
80 Foster Street Unit 101
Peabody MA, 01960
Listing courtesy of Susan Sullivan of Realty Consultants of Cape Cod.